Tom

2695 Main Street, Winnipeg, MB, Winnipeg 0 views 1 month ago
3 Beds Bedrooms
2 Bathrooms
Houses for Sale Type
Description
MUST SEE OPEN HOUSE SUNDAY 1:00 TO 4:00

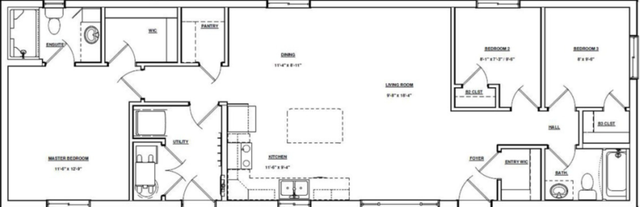
140-2695 Main Street



You can’t open a newspaper, or turn on your television nowadays, without seeing somebody talking about affordable housing. The story’s always the same; there’s a huge need, but very little is being done to meet that need. In our own small way, we think we can help.



If you’re someone looking for that rare affordable home, you might want to consider these two unique opportunities. One is a super energy efficient, 1200 square foot, 3 bedroom, 2 bath home, priced at $279,500, while the other is a smaller 2 bedroom, 2 bath home of just under 1,000 square feet. The smaller home is priced at $229,500. Complete with appliances and central air conditioning, both these move-in ready homes can be purchased for as little as 5% down, with total monthly payments of $1,707 and $1,653 respectively. That’s less than the rent you would pay for most 2-bedroom apartments in Winnipeg.



How do we make it that affordable? It’s all because of the unique ownership structure at Rivergrove Estates, Manitoba’s premiere manufactured home park. In our park, you own your home, but you lease the land the home sits on. This form of ownership structure is used for many of the recreational areas in the province (Falcon Lake, the Whiteshell, Clear Lake, Hecla Island, etc.) as well as for many high-end resort properties in the U.S.



This unique ownership structure means no Land Transfer Tax on the purchase ($3,364 and $2,364 respectively), no property taxes (easily $300 per month) and you get a tax credit on the monthly rent you pay for your lot. Importantly, the lease on your land falls under the Provincial Rent Control Legislation, so there’s little likelihood of a large rental increase in the future.



There’s only two, and when they’re gone, they’re gone, so if you’re in the market for an affordable home, make sure you check out these unique opportunities!



To arrange a private viewing, or to receive a detailed information package, call/text Tom Creighton at 204-229-1775, or email FBB@MTS.NET.



RIVERGROVE ESTATES

CITY CONVENIENT! COUNTRY QUIE
Read more
Property Details
Market Price Insight
Based on 3,420 rental transactions in Winnipeg
$0.84
Avg $/sqft
$1,562
Avg Monthly
17799% above avg
This Listing
Source: Market data 2019–2020 · Winnipeg
Price History — Houses for Sale in Winnipeg

Average listing price over the past 24 months for this category and city.

Location

Approximate location shown for privacy.