Room for rent (Large room / Beautiful home / Great Location)

556 Sandybrook Drive, London, ON, London 0 views 1 month ago
Studio Bedrooms
Room Rentals & Roommates Type
Description
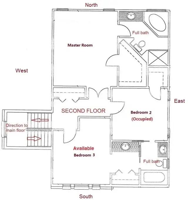
A great room is available from March 1 in a gorgeous 2-storey house (556 Sandybrook Drive, London, ON, N5X 4H1), which is backing onto the conservation land with a grass knoll behind. From the back of the house, you can enjoy a very large and beautiful view. This place is very quiet and nice for living and studying for students or professionals.

This big room is on the second floor with windows facing South (warm and bright). This room shares a full bath with another room (see the plan). The monthly rent is $800. All inclusive (utilities / wifi / parking). 2-month lease first, after that go month-to-month, so need deposit for last month.

No drugs, no alcohol, no smoking, no pets, no party, no rock music, no over-night visitor, no tattoo!

Should you be interested in this room, please contact me by email (Qimi_J@Yahoo.com) or phone (248-219-1470).
Read more
Market Price Insight
Based on 5,962 rental transactions in London
$0.88
Avg $/sqft
$1,598
Avg Monthly
50% below avg
This Listing
Source: Market data 2019–2020 · London
Price History — Room Rentals & Roommates in London

Average listing price over the past 24 months for this category and city.

Location

Approximate location shown for privacy.