Penthouse locatif d’exception sur le golf en unité de coin

Longueuil, QC J4N 0K6, Longueuil / South Shore 0 views 2 months ago
2 Beds Bedrooms
2 Bathrooms
Apartments & Condos for Rent Type
Description
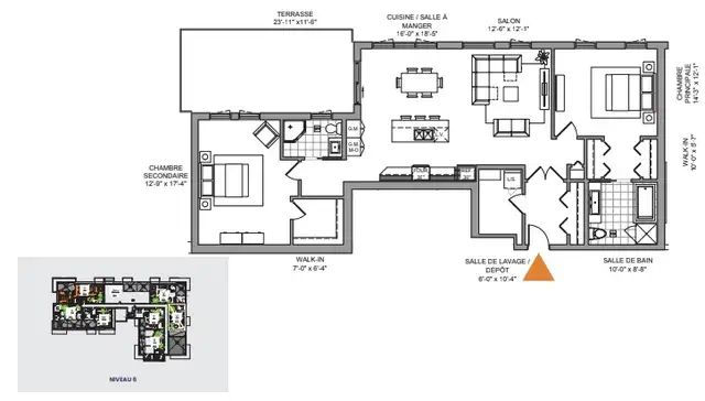
Penthouse locatif d’exception, unité de coin de 1 343 pi² avec deux salles de bain, offrant des vues panoramiques à couper le souffle sur le Golf Le Parcours du Cerf de Longueuil, incluant l’un de ses lacs, ainsi que sur le Grand Montréal.

Concept clé en main, tout inclus, dans un immeuble livré en juillet 2024, avec piscine creusée chauffée extérieure.

Une opportunité rare sur le marché locatif haut de gamme. Une visite s’impose pour pleinement apprécier la valeur exceptionnelle de cette unité. Enquête de crédit requise.

Une unité de ce calibre devient rarement disponible — contactez-nous rapidement.

Disponible dès le 1er mars 2026.

Contact pour tous les détails : Jean | 514-970-1425
Read more
Property Details
Market Price Insight
Based on 5,060 rental transactions in Longueuil / South Shore
$1.15
Avg $/sqft
$1,030
Avg Monthly
Source: Market data 2019–2020 · Longueuil / South Shore
Price History — Apartments & Condos for Rent in Longueuil / South Shore

Average listing price over the past 24 months for this category and city.

Location

Approximate location shown for privacy.