Building for Sale 885 Portage Avenue - Office Retail Space ~

Winnipeg, MB R3G 0P3, Winnipeg 0 views 1 month ago
Studio Bedrooms
Other Real Estate Type
Description
Grow your business in one of the city’s most high-visibility locations. This exceptional C2-zoned building is located on the bustling corner of Portage Avenue and Arlington Street, surrounded by strong commercial, retail, and residential traffic.



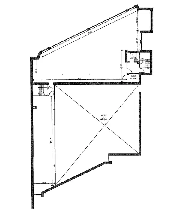
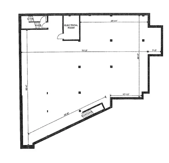
Building Size

• Main floor: 5,090 sq.ft. /-

• 2nd floor: 4,110 sq.ft. /-

• Basement: 4,582 sq.ft. /- (8' High)

Total Area: 13,782 sq.ft.



Property Features:



• 2 storeys basement

• Main Floor: 16 ft ± ceiling height, large open area, 4 offices, and a safe

• Second Floor: 7 offices, 2 meeting rooms, open workspace, and storage

• Covered on-site parking

• High-traffic area with nearby amenities



Perfect for businesses looking for a central, well-connected location with excellent exposure.



Call Tony at (204) 952-1970 to book a viewing or learn more.
Read more
Market Price Insight
Based on 15,805 rental transactions in Winnipeg
$0.82
Avg $/sqft
$1,295
Avg Monthly
162040% above avg
This Listing
Source: Market data 2019–2020 · Winnipeg
Price History — Other Real Estate in Winnipeg

Average listing price over the past 24 months for this category and city.

Location

Approximate location shown for privacy.