3 Bedroom 2 Washroom Lower Unit for Rent-$2599 Utilities

57 Phillip Avenue, Scarborough, Ontario, City of Toronto 0 views 23 hours ago
3 Beds Bedrooms
2 Bathrooms
Apartments & Condos for Rent Type
Description
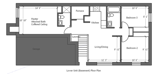
- Beautiful and New Full Basement Apartment for Rent. It is a Legal 3 bedroom, 2 washroom apartment with its own kitchen, living room, laundry and separate entrance.

- Lots of daylight, high ceiling.

- Master Bedroom has attached bathroom.

- Rent: $2,500 Utilities. Not Furnished.

- Parking on Driveway available for $75/car.

- Available from March 01, 2026.

- Address: 57 Phillip Avenue, Scarborough ON M1N 3R1

- Call: 416-571-7563
Read more
Property Details
Market Price Insight
Based on 5,114 rental transactions in City of Toronto
$0.59
Avg $/sqft
$2,683
Avg Monthly
3% below avg
This Listing
Source: Market data 2019–2020 · City of Toronto
Price History — Apartments & Condos for Rent in City of Toronto

Average listing price over the past 24 months for this category and city.

Location

Approximate location shown for privacy.