200-119 Ross Ave. | Office for Lease - Wellington West, Ottawa

119 Ross Avenue, Ottawa, ON, K1Y 3B6, Ottawa 0 views 21 days ago
Studio Bedrooms
Commercial & Office Space for Rent Type
Description

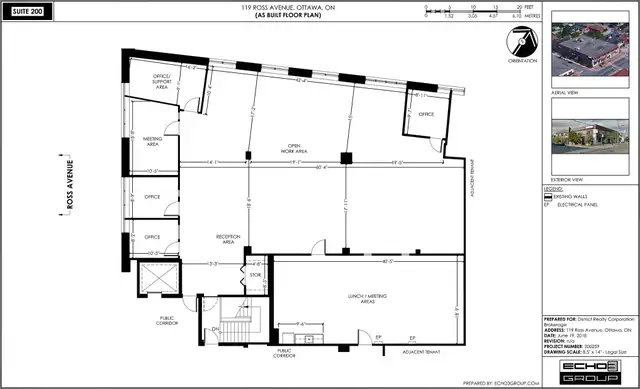
119 Ross Avenue, Suite 200 | Office Space for Lease Wellington Village

Price: $14.00 / sq. ft.
Operating Costs (OPC): $21.86 / sq. ft.
Size: 4,021 sq. ft.
Availability: Immediately

Property Highlights

  • Corner suite on the second floor with elevator access

  • Plenty of natural light throughout

  • Includes large lunchroom, meeting room, reception area, 4 private offices, and open space for workstations

  • Daily cleaning and utilities included

Location Benefits

  • In the heart of trendy Wellington Village

  • Walk to restaurants, cafés, groceries, and cultural destinations

  • Short walk to Tunneys Pasture LRT; bus route 11 stops on site

  • Quick car access to HWY 417 and the Parkway

  • On-site parking available

Why 119 Ross Avenue, Suite 200?
A spacious, move-in-ready office in one of Ottawas most vibrant neighborhoods ideal for growing businesses.

Contact to Schedule a Showing
District Realty
613-759-8383
Office Hours: MondayFriday | 8:30 AM 5:00 PM

Read more
Property Details
Market Price Insight
Based on 13,581 rental transactions in Ottawa
$0.76
Avg $/sqft
$1,853
Avg Monthly
Source: Market data 2019–2020 · Ottawa
Price History — Commercial & Office Space for Rent in Ottawa

Average listing price over the past 24 months for this category and city.

Location

Approximate location shown for privacy.